“NO NONSENSE MACHINES AT NO NONSENSE PRICES”

SM4054 - RECYCLED FIBRE PLANT 450 TPD EXCLUSIVE SALES PARTNER

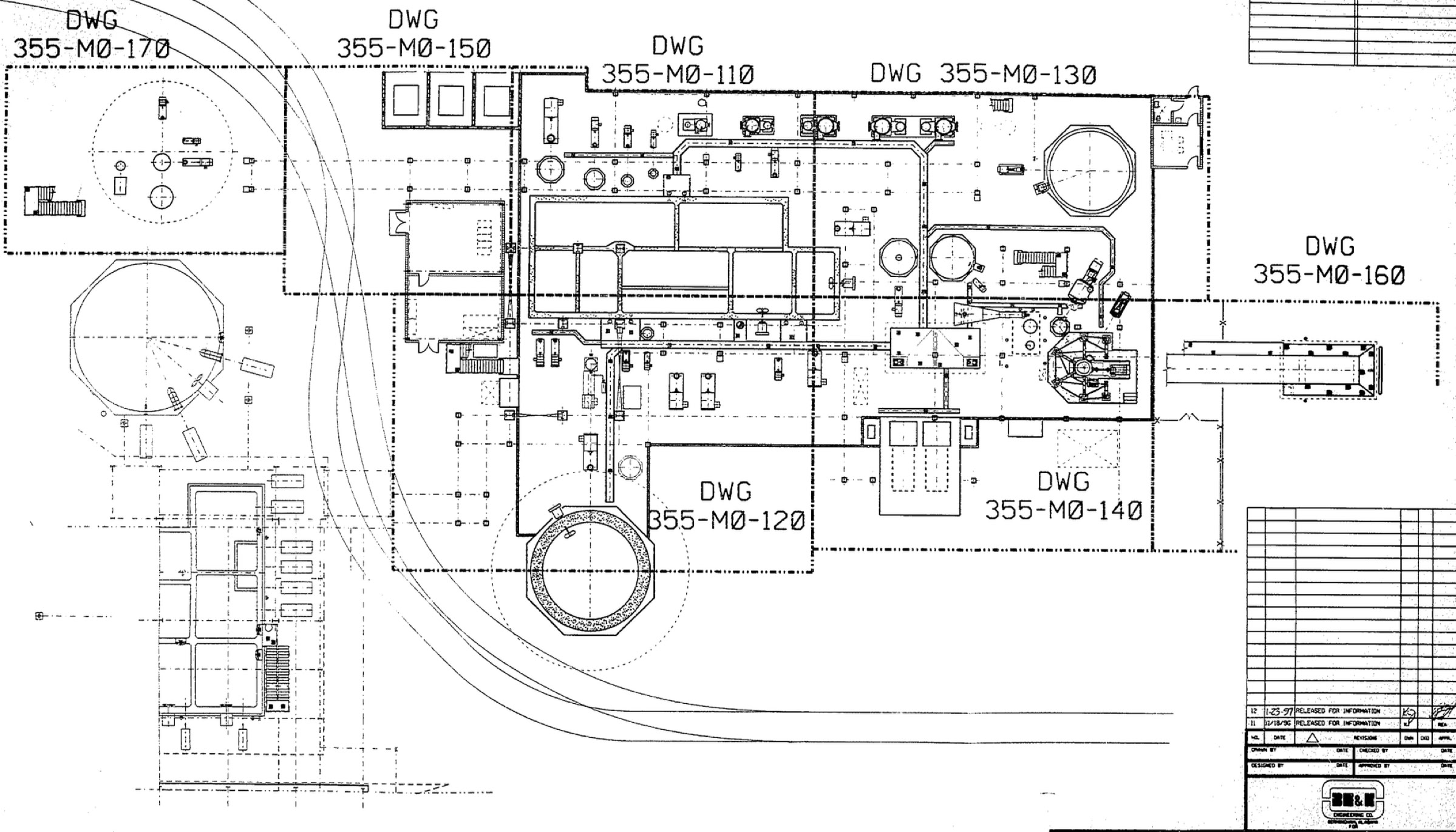
BASIS OF DESIGN

450T/Day

~ 12% consistency

80% OCC  /  20% MWP

Conveyor

Pulper

Ragger

TRASH SCREEN

Motor:    D315S/415V/75kW/6P

Screen:    Black Clawson Hydrapurge HP33-3000

Belt Drive, 3/8” Holes. 50-75 TPD, 3180l/min

PRIMARY COARSE CLEANING/SCREENING

HD CLEANERS

Black Clawson HD 17” x 2

DN200 valves on junk trap

PRIMARY COARSE SCREEN

    DOM 1996

    Motor:    POPE, D355LY, 415V/255kW/6P

    Screen: Black Clawson, ULTRA-V UV600, #96-UV600-8064, 2.0mm Holes

    Belt Drive

SECONDARY COARSE SCREENING

FIBREIZER

Motor: ASEA D315S/415V/110kW/4P

Pump: ESHER WYSS F2 Fibreizer – 12mm holes

Belt Drive

REJECT SCREEN HEADER TANK

3000L x 1000W x 1200H, Baffled with overflow, Stainless

COARSE REJECT SCREEN

    Motor: POPE, D225S, 415V/37kW/4P

    Screen: Black Clawson, Ultra Sorter, US30, 96-US30-0121

    Belt Drive

MD CLEANING

MD Cleaners x 4

Black Clawson 14.5”

DN200 valves on junk trap

PRIMARY FINE SCREENING

PRIMARY FINE SCREENS x 2

    Motor:    POPE, D355LY, 415V/200kW/6P

    Screen: Black Clawson, ULTRA-V UV600

    Belt Drive

    0.20mm Slots

SECONDARY/TERTIARY FINE SCREENING

SECONDARY FINE SCREEN

Motor:    POPE, D315M, 415V/110kW/6P

    Screen: Black Clawson, ULTRA-V UV400, 

    Belt Drive

    0.20mm Slots

TERTIARY FINE SCREEN

Motor:    POPE, D280M, 415V/55kW/6P

    Screen: Black Clawson, ULTRA-V UV200, 

    Belt Drive

    0.20mm Slots

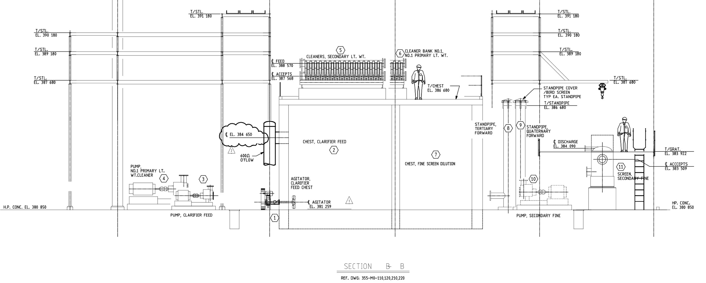
LIGHTWEIGHT CLEANING

#1 PRIMARY LIGHTWEIGHT CLEANERS

    Black Clawson X-Clone LD Cleaner

    3  Banks of 72 cleaners

#2 PRIMARY LIGHTWEIGHT CLEANERS

    Black Clawson X-Clone LD Cleaner

    3  Banks of 72 cleaners

SECONDARY LIGHTWEIGHT CLEANERS

    Black Clawson X-Clone LD Cleaner

    1 bank of 56 cleaners

FORWARD CLEANERS

PRIMARY FORWARD CLEANER STANDPIPE

    ACME Engineering, API 650, 2500 Dia, 26.0m^3

PRIMARY FORWARD CLEANERS

ALFA LAVAL CELLECO Cleanpac 700 LD Centricleaners

Bank of 42

SECONDARY FORWARD CLEANER STANDPIPE

    ACME Engineering, API 650, 1000 Dia, 4.2m^3

SECONDARY FORWARD CLEANERS

ALFA LAVAL CELLECO Cleanpac 700 LD Centricleaners

Bank of 24

TERTIARY FORWARD CLEANER STANDPIPE

    ACME Engineering, API 650, 500 Dia, 1.1m^3

TERTIARY FORWARD CLEANERS

ALFA LAVAL CELLECO Cleanpac 700 LD Centricleaners

Bank of 8

QUATERNARY FORWARD CLEANER STANDPIPE

    ACME Engineering, API 650, 265 Dia, 2.295m^3

FIBREMIZER

ALFA LAVAL CELLECO Cleanpac 350

Bank of 2

QUATERNARY FORWARD CLEANERS

ALFA LAVAL CELLECO Cleanpac 700 LD Centricleaners

Bank of 3 (manifold for 8)

RECYCLE PULP THICKENER

THICKENER

    ALFA LAVAL CELLECO, Centredisc Filter, 5ML2-16(14), 14 Disc

HD STORAGE

MC PUMP:

Motor:     POPE, D315L, 415V/185kW/4P

    Pump: ALSTOM, MCA32-150    

MC DEGAS PUMP

Motor:     MARATHON, D132M, 415V/7.5kW/4P

    Pump: NASH, AHF75-MC1

WATER TREATMENT

CLARIFIER

VOITH/MERI OMC DELTAPRUGE  DAF unit, DPP130A, DOM 1997, Serial D209

    Bridge Drive:     Gearmotor, EURODRIVE, 415V/1.1kW

    Scoop Drive:    Gearmotor, EURODRIVE, 415V/1.5kW

CHEMICAL DOSING PLANT:

Bulk Storage Silo        Allied Colloids

Makedown Unit/Mix Tank    Allied Colloids 

Dosing Pumps x 2        WEG, D80 415V/0.75kW/2P – MONO 13AC81RPA

SATURATED AIR SYSTEM

        Pressure Vessel:    MERI, ASR5 Assembly, 

        Compressor:    INGERSOL RAND, Model 2475, 1997.  TECO, D132S 415V/5.5kW/2P

REJECTS HANDLING SYSTEM

SCREEN TROMMEL

Black Clawson, Selectpurge 4500 Dewatering Drum, 96-SP4500-0176, DOM 1996, Belt Drive

    Motor:    GMC, D112M, 415V/4kW/4P

    G/Box:    ROSSI, MR-CI-100-UO3A, 8.92:1

REJECTS PRESS

VOITH/TRUMAG, CX50, DOM 1997, #10294

    Motor:     NORMAND, 415V/22kW/4P

    G/Box:    NORD, SK93F, 46.57:1

FLOC TANK

FUKOKU KOGYO CO. Ltd, 1200 Dia x 2800m, 2043L, Stainless

SLUDGE THICKENER DRUM SCREEN

FUKOKU KOGYO CO. Ltd, RST-HC630 x 3000L, DOM 3/1997, #HCRST-0118-1

Drum    Motor:  POPE, D100L, 415V/2.2kW/4P

        G/Box:    SUMITOMO, HACN 3 3145

Shower    Motor:    POPE, D90L, 415V/1.5kW/4P


 

SLUDGE PRESS

FUKOKU KOGYO CO. Ltd, Screw Press SHX-800X5000L

    Motor: POPE, D355L, 415V/185kW/6P

    G/Box: FALK 465A4-C-322.2, 322.2:1

    Sprocket Drive RS240-2 16/48

SAND SEPARATOR

VOITH TRUMAG, SEDIMATOR 28-8, 1.88m^3

    Motor:    NORD, D80, 415V/0.75kW/4P

    G/Box:    NORD, SK538AF-80L4-2, 700.3:1

REJECT COLLECTION

Chute Flop Gate

REJECT PACKERS X 2

CAREPAK MODEL CP226/SP6C-5C

Motor: POPE, D160M, 415V/11kW/4P

PEDESTAL CRANE – 5T

JJ Niven, Serial #97077, DOM 1997, SWL 5Tonne

PEDESTAL CRANE – 1T

Serial #97076, DOM 1997, SWL 1 Tonne

CONTACT  –  Email: mark@saxonmachinery.com  –  Phone: +44 7500 115 23